

Project Type: Specific Plan and Development Prototypes
Scale: Ten blocks near Downtown Palo Alto
Date: 2003, Plan Approved
Client: Lisa Grote, Chief of Planning, City of Palo Alto
Principal: Alison Kendall, Principal-in-Charge
FTB Urban Design
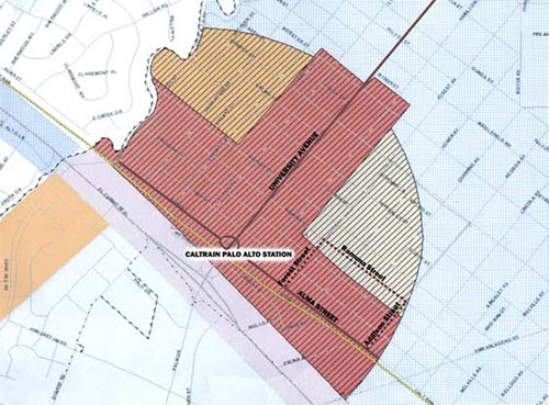
The City hired Alison Kendall, prime consultant for the original SOFA Coordinated Area Plan, to help develop mixed use development standards for Phase 2. Unlike Phase 1, which contained several large parcels, the SOFA 2 area consisted primarily of smaller parcels developed with a dense mixture of commercial and residential uses. City policy targeted the area for substantial new housing due to its proximity to the downtown and train station. However the fine grained pattern, historic buildings and adjacent residential areas required careful attention to the scale of new development.
Working with the citizens and City staff, FTB developed prototype designs, identifying key standards which addressed scale or affected housing density. Likely redevelopment sites were identified in consultation with economists and local developers. As the standards were refined by staff, Working Group and Planning Commission review, FTB designed prototypes for all likely sites for a 3-d model to provide two possible scenarios, one resulting in significantly more housing units, and one with lower buildings and less redevelopment potential. Economic feasibility analysis of a typical site on small and larger parcels helped to identify the incentives needed to encourage redevelopment with mixed use and housing.
DOWNLOAD A PDF OF THIS PROJECT SHEET
OPEN A PRINTABLE VERSION OF THIS WINDOW
CLOSE THIS WINDOW